Kuchnia Nolte Portland/Ferro

Kuchnia Nolte Portland/Ferro

Fronty:

  • ferromagnetyczne w kolorze czarnym - szafki dolne

  • fronty pokryte zaimpregnowanym cementem – szafki wiszące

     

Uchwyt:

dokręcany w kolorze czarnym

 

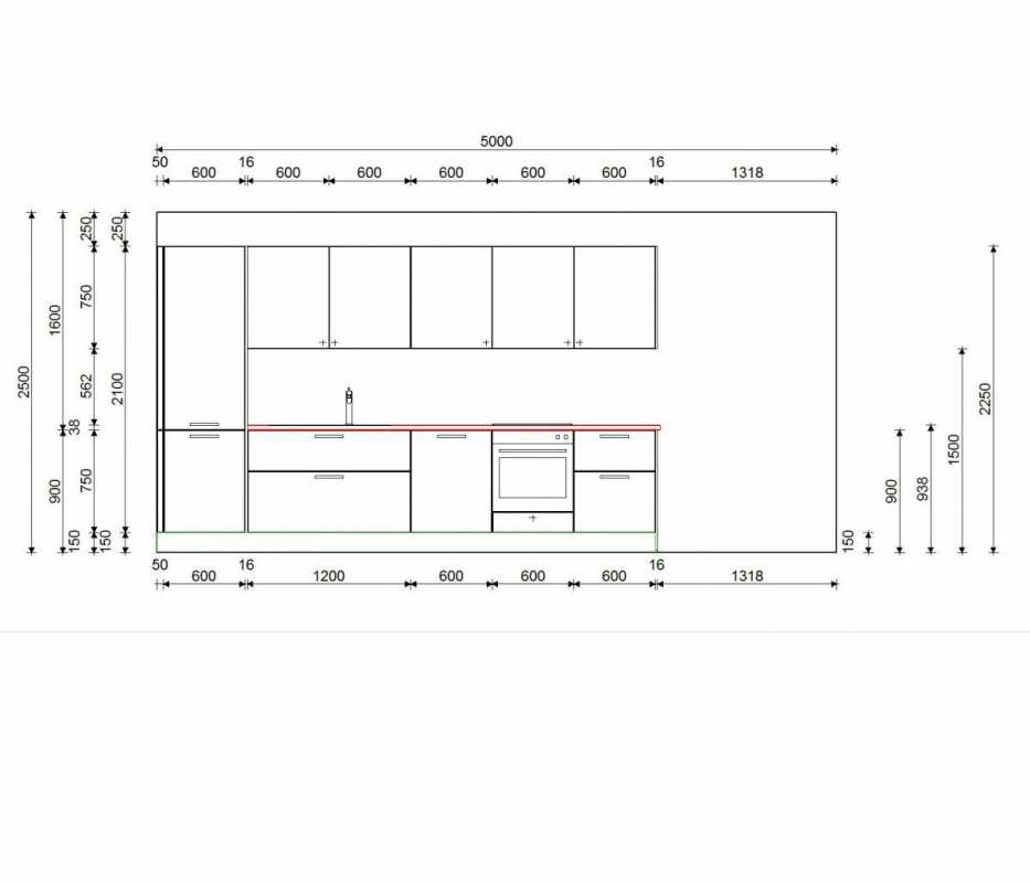
Zestaw mebli kuchennych zawiera:

  • szafa do zabudowy chłodziarko zamrażarki szer. 60 cm wys. 210 cm

  • szafka dolna z szufladami szer. 120 cm pod zabudowę zlewozmywaka, górna szuflada wys. 30 cm. z wycięciem pod syfon, dolna szuflada wys. 45 cm z sortownikami na śmieci 2x pojemnik 17l 2x pojemniki 8l

  • front do zabudowy zmywarki szer. 60 cm ,

  • szafka do zabudowy piekarnika,

  • szafka z szufladami szer. 60 cm, 2 szuflady niskie w tym jedna wewnętrzna, 1x drewniany wkład na sztućce, 1x wkład na sztućce z tworzywa sztucznego, 1 szuflada wysoka , bok szuflady w formie relingu

  • szafka wisząca szer. 60 cm wys. 75 cm z ociekaczem

  • szafka wisząca szer. 60 cm wys. 75 cm otwierana na prawo z półkami

  • szafka wisząca szer. 60 cm wys. 75 cm otwierana na lewo z półkami

  • szafka wisząca do zabudowy okapu otwierana na lewo szer. 60 cm wys. 75 cm

  • szafka wisząca szer. 60 cm wys. 75 cm otwierana na prawo z półkami

  • blat laminowany

 

Cena mebli kuchennych wraz z blatem - 17 000 zł brutto 

 

Kuchnię mogą Państwo zobaczyć w naszym salonie Nolte przy ul. Domaniewskiej 37b w Warszawie.