Kuchnia Feel/ArtWood

Wyprzedaż kuchni z ekspozycji Feel/ArtWood

Fronty: laminowane pokryte warstwą softmattowego lakieru, kolor czarny, laminat drewnopodobny

 

Uchwyty:

Zaokrąglane nabijane na front, wykończenie -chrom

 

Zestaw mebli kuchennych zawiera:

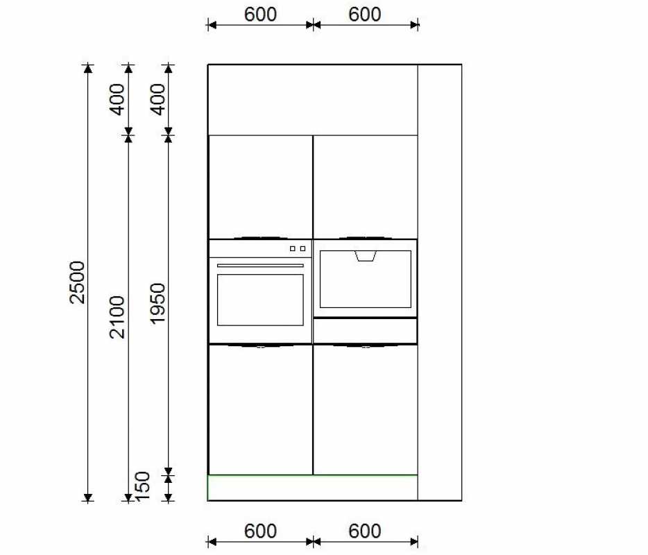
  • szafa pod zabudowę piekarnika szer. 60 cm wysokość 195 cm, pod piekarnikiem szafka otwierana na lewo, w środku szuflady wewnętrzne 1 niska 2 głębokie, nad piekarnikiem szafka otwierana na lewo z półką
  • szafa do zabudowy ekspresu lub mikrofali i szuflady grzewczej, szer. 60 cm wysokość 195 cm, pod szufladą szafka otwierana na prawą stronę z półkami, nad ekspresem szafka otwierana na prawo z półką
  • szafka dolna- regał na wino szerokość 15 cm
  • szafka pod zabudowę płyty indukcyjnej szer. 120 cm, 1 zaślepka frontu wys. 15 cm, otwarty regał w kolorze drewnopodobnym wys. 30 cm, szuflada wys. 30 cm z pełnymi metalowymi bokami)
  • front do zabudowy zmywarki szer. 60 cm
  • szafka cargo szer. 15 cm, z półką i uchwytem na ręczniki
  • szafka zlewozmywakowa szer. 60 cm z szufladą i sortownikami na śmieci, 2x pojemnik 17l, 1x pojemniki 8l, dodatkowe elektryczne wspomaganie otwierania szuflady
  • szafka z szufladami szer. 90 cm, niska szuflada wysokość 15 cm z drewnianym wkładem na sztućce i dodatkowym oświetleniem, szuflada wysokości 30 cm z pełnymi metalowymi bokami, szuflada wysokość 30 cm pogłębiona o przestrzeń w cokole
  • barek z laminatu drewnopodobnego dł. 180 cm gł. 40 cm
  • szafka wisząca szer. 80 cm wys. 60 cm, uchylna do góry, front podwójny łamany, dodatkowe elektryczne wspomaganie otwierania, oświetlenie podszafkowe w formie listwy Led frezowane w dolnej płycie korpusu
  • szafka wisząca szer. 80 cm wys. 60 cm, uchylna do góry, front podwójny łamany, dodatkowe elektryczne wspomaganie otwierania, oświetlenie podszafkowe w formie listwy Led frezowane w dolnej płycie korpusu
  • czarny regał
  • blat laminowany gr. 2,5 cm

 

Cena mebli kuchennych - 18 000 zł brutto 

 

Możliwość dokupienia

  • zlew SCHOCK WATERFALL D-100 FB montowany na równi z blatem 1700 zł
  • płyta indukcyjna AEG IKE85441IB 3200 zł

 

Kuchnię mogą Państwo zobaczyć w naszym salonie przy ul. Domaniewskiej 37b w Warszawie